产品分类 : 露点传感器
型号 : SGA-CG-8206LD
产品描述 : 露点传感器是深国安研发的一款工业温湿度露点传感器,该产品SGA-CG-8206LD型露点传感器采用的是聚合物高分子敏感电容,响应迅速,稳定可靠,测量范围为-80℃~20℃Td,精度全量程±2℃Td,本产品具有自动校准零点功能,并自动加热清洗附着在传感器表面的化学物质,长期使用极其稳定。
SGA-CG-8206LD露点传感器
一、产品概述
深国安SGA-CG-8206LD型露点传感器采用的是聚合物高分子敏感电容,响应迅速,稳定可靠,测量范围为-80℃~20℃Td,精度全量程±2℃Td,本产品具有自动校准零点功能,并自动加热清洗附着在传感器表面的化学物质,长期使用极其稳定,本高分子露点电容是花了二十多年时间艰苦研究的成果,通常高分子电容难以测量低于-40℃Td的露点,由于变化率太低,信号在电路上难以分辩,深国安进行了大量的基础研究工作,终于掌握了提高低湿灵敏度的技术,目前SGA-CG-8206LD型露点传感器从-70℃Td变到-50℃Td情况下,基础电容从300pF变至305pF,超过市场上所有的高分子露点电容。

二、性能优势
1.全新的高分子薄膜传感器技术
2.高达+/-2℃Td 的精度测量
3.自动加热校准功能
4.超快的响应速度及出色的长期稳定性
5.防冷凝结露,抗微粒污染、油蒸汽及多数化学品
6.出厂前的多点温度补偿校验
7.出色的抗干扰能力
8.IP65 防护等级,即使恶劣的环境下也能提供良好的保护
9.低湿灵敏度要超过普通湿敏电容百倍以上
10.高分子聚合物具有耐酸,耐碱,耐水浸,对使用环境要求很低,请放心使用

三、露点传感器尺寸图

四、露点传感器接线方式

五、露点传感器技术参数


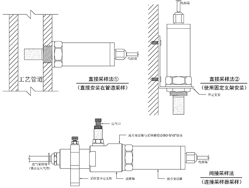
六、露点传感器安装示意图(采样器选配)

七、露点传感器应用信息
1.工作条件
确保传感器性能正常稳定的工作,建议使用温度范围-40~60℃,超出建议的范围可能导致测量结果暂时性漂移。
2.存储条件与恢复
湿度传感器为环境敏感型电子元器件,需要仔细防护。长期暴露在高浓度的化学蒸汽中将会致使传感器的测量产生漂移。因此建议将传感器存放于原包装内,并符合存储条件:温度范围-40℃~60℃;湿度范围0~95%RH。在生产和运输过程中,要保证传感器远离高浓度的化学溶剂,要避免使用挥发性胶水、粘性胶带、不干胶贴纸,或者具有挥发性的包装材料,如发泡塑料袋、泡沫塑料等。

八、特别说明
许可协议
以上内容由本公司提供版权所有,未经本公司之书面许可,此手册中任何段落,章节内容均不得被摘抄、拷贝或以任何形式复制、传播,否则一切后果由违者自负,本公司保留一切法律权利。
本公司保留对手册所描述之产品规格进行修改的权利,恕不另行通知。订货前,请垂询当地代理商以获悉本产品的最新规格。

警 告
使用及人身伤害
勿将本产品用于安全保护装置或急停设备上,以及由于本产品故障可能导致人身受到伤害的任何应用中;在使用本产品前,请仔细阅读本说明书中的内容;
禁止在易燃气体附近使用
禁止在易燃、易爆气体的场所使用;
严禁直接触及传感器
为防止污染感湿膜,避免手指直接触摸元件表面;汗液会污染感湿膜会导致性能漂移,接触传感器请戴防静电手指套;
避免产生化学反应
避免在含有以下气体的环境中使用:盐、二氧化硫、卤素气体、氨、酒精、乙二醇醚、醛等;
工作环境
本产品对光线不敏感,但长时间暴露在太阳光或则紫外线辐射中,同样加速老化;
三包服务
正常环境条件使用下,本产品2年内承诺三包服务。